İstanbul Etiler - Kütüphane Tasarım ve Uygulama Projesi
Proje Hakkında
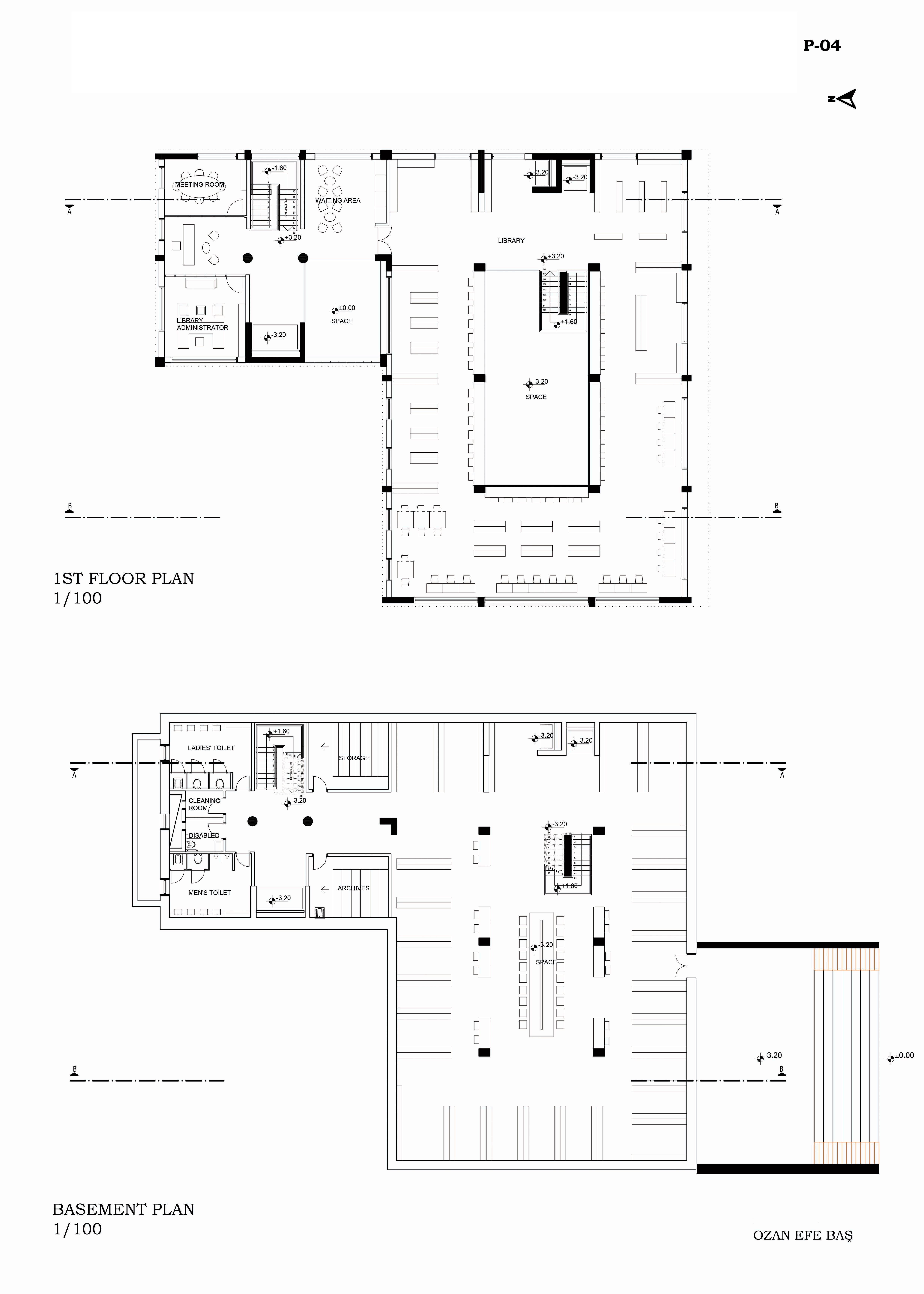
Proje, Etiler’in yoğun kent dokusu içerisinde mahalle ölçeğinde bir kültürel odak yaratmayı amaçlamaktadır. Bölgenin tarihi dokusu ve yerleşim kültürü, kamusal yaşamla bütünleşen bir kütüphane tasarımına ilham vermiştir. Yapı, doğal ahşap kaplamaları ve yalın cephe kurgusuyla çevresiyle uyumlu bir kimlik sergilerken, iç mekânda esnek okuma ve çalışma alanları sunmaktadır. Cephe tasarımında ahşap ve taşıyıcı sistem ögelerinin akışkan bir biçimde cepheye yansıtılmasıyla sıcak ve çağdaş bir görünüm elde edilmiştir. Detay çözümlerinde ısı yalıtımı, su yalıtımı ve sürdürülebilir malzeme kullanımı ön planda tutulmuştur. Hem kullanıcı konforu hem de yapısal dayanıklılık gözetilerek, Etiler’in tarihî ve kültürel değerleriyle uyumlu, uzun ömürlü bir kütüphane yapısı önerilmiştir.










